Категории
Кран шаровой газовый полнопроходной специальная серия MAX резьбовой
Характеристики
Макс. температура (Т) °С.: до +80 °С
Мин. температура (Т) °С.: до -60 °С (исп. ХЛ)
Класс герметичности: Класс «А» ГОСТ 9544-2015
Срок службы: 40 лет*
Гарантийный срок: 10 лет
Материалы корпуса: Сталь 09Г2С/12Х18Н10Т
Проход: Полнопроходной
Присоединение: резьбовое/резьбовое
Рабочая среда:
Природный газ, сжиженный углеводородный газ и другие газообразные среды, неагрессивные для материалов деталей крана.
Серия кранов с усовершенствованными техническими характеристиками. Передовые инженерные решения и высококачественные материалы обеспечивают максимальную надежность, долговечность и эффективность на трубопроводах с жидкими и газовыми средами
- Краны имеют все необходимые сертификаты и разрешения
- Уникальная конструкция ремонтопригодной горловины с эффектом самоуплотнения позволяет восстановить уплотнения без демонтажа шарового крана
- Маркировка индивидуального номера крана наносится нестираемым способом согласно ГОСТ 4666-2015 и позволяет идентифицировать кран на протяжении всего срока службы
- Конструкция крана испытана на герметичность в сложных условиях путем сжатия, растяжения и изгиба согласно международным нормам
- Увеличенный срок гарантии - 10 лет.
Примечания:
Все краны поставляются в комплекте с рукояткой. По заказу могут поставляться с редуктором.
* При условии соблюдения правил эксплуатации.
Модификации
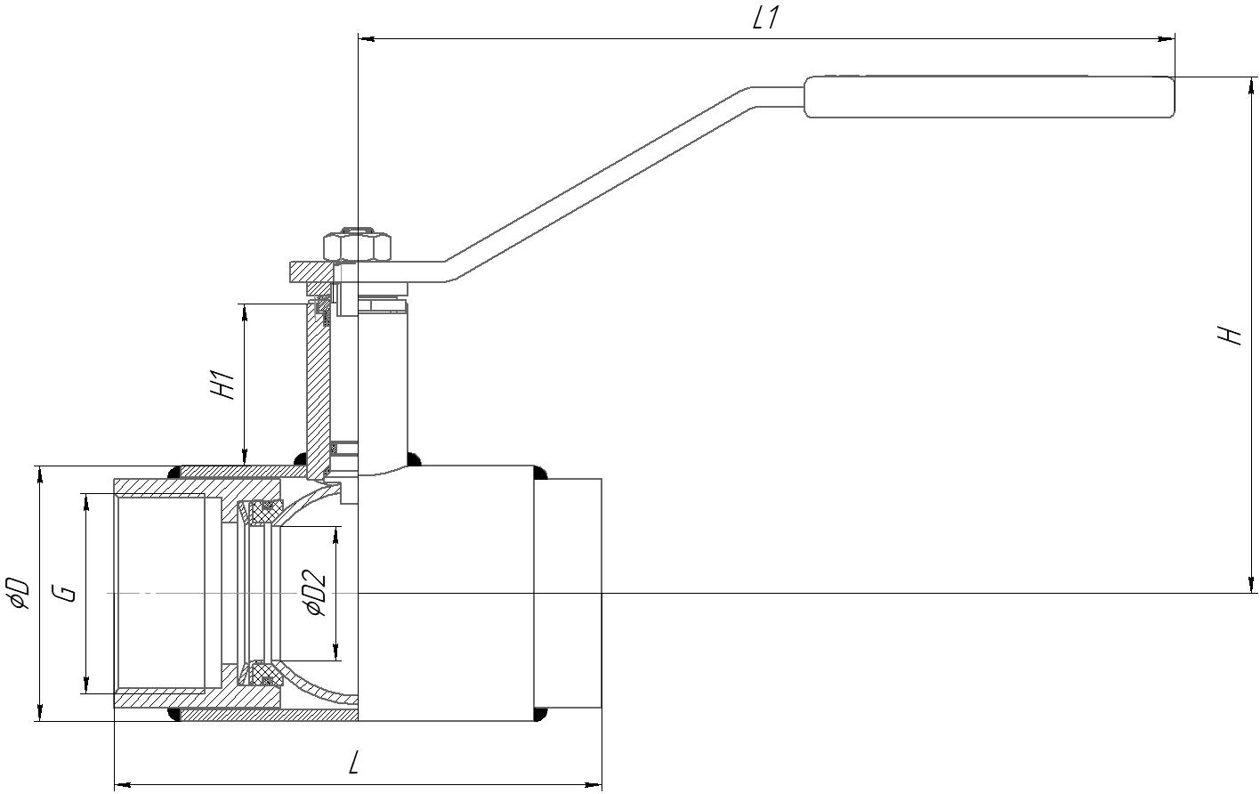
| Артикул | DN | PN | L | L1 | H | H1 | D | G | D2 | Вес, кг | |
|---|---|---|---|---|---|---|---|---|---|---|---|
| 99020015 MAX | 15 | 40 | 100 | 143,8 | 142,1 | 49,1 | 42 | 1/2 | 15 | 0,75 | |
| 99020020 MAX | 20 | 40 | 100 | 143,8 | 144,7 | 48,7 | 48 | 3/4 | 18 | 1,02 | |
| 99020025 MAX | 25 | 40 | 100 | 143,8 | 149,3 | 48,8 | 57 | 1 | 24 | 1,28 | |
| 99020032 MAX | 32 | 40 | 120 | 243 | 145 | 47,6 | 60 | 1 1/4 | 30 | 1,73 | |
| 99020040 MAX | 40 | 40 | 145 | 243 | 153,5 | 48,1 | 76 | 1 1/2 | 40 | 2,97 | |
| 99020050 MAX | 50 | 40 | 190 | 243 | 159,5 | 47,6 | 89 | 2 | 48 | 4,73 | |
| 99020065 MAX | 65 | 25 | 200 | 277,6 | 193,8 | 69,4 | 114 | 2 1/2 | 63 | 6,58 | |
| 99020080 MAX | 80 | 25 | 240 | 277,6 | 203,5 | 69,6 | 133 | 3 | 75 | 12,79 | |
| 99020100 MAX | 100 | 25 | 240 | 526 | 179,3 | 61,3 | 180 | 4 | 100 | 13,59 |